}

Let's Bring You Home

BED / BATH / 4294 SqFt.
STATUS ACTIVE / DAYS AVAILABLE 1

$495,000

Listing Provided Courtesy of Heather Murray, Two Bridges Realty Inc.

Schedule a Showing

Ferguson Homesales
(902) 292-6317
Presented by
Maureen Ferguson
Cell: 902-292-6317

10 Inglis Place

Truro, NS, B2N 4B4

About the Listing

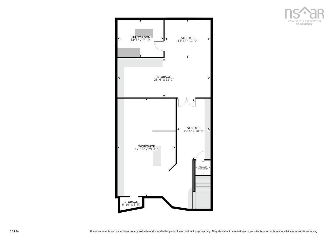
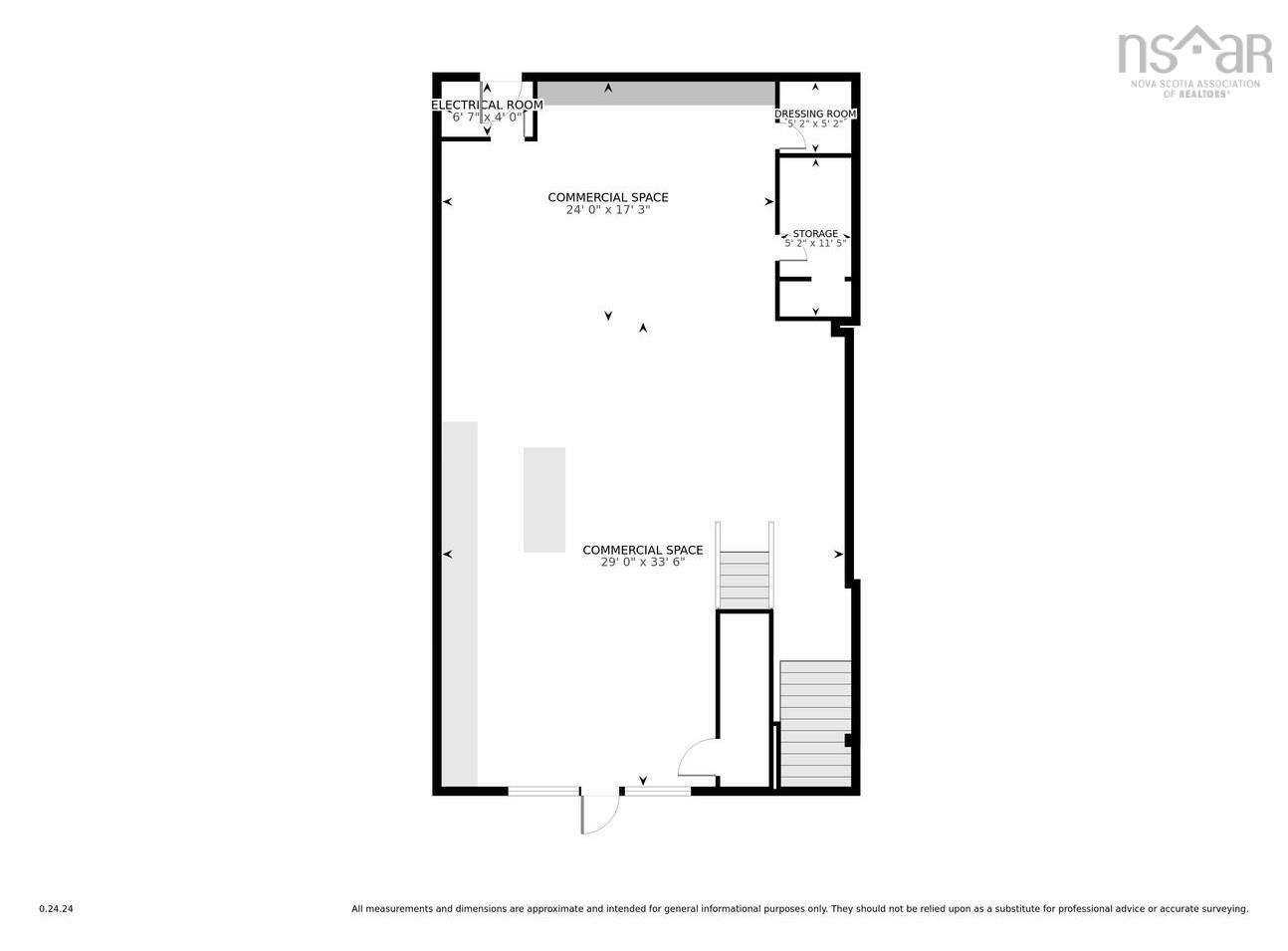
Beautiful Heritage Retail / office building in Downtown Truro. Inglis Place has been a go-to location for unique retail and to experience the small town shopping feel unique to the maritimes. The grade level and 2nd floor consist of over 3100ft2 of actual floor area, with the lower basement level adding another 1600ft2 of space.The full basement is perfect for storage or potentially further retail or business uses. Upgrades over the past couple if years have included replacing the boiler, installing a fibreglass oil tank, new siding, new vinyl windows, 25-year warrantied roofing membrane installed in 2020, and interior cosmetic upgrades in new flooring & lighting fixtures. Floor plans for each floor are included in the pictures as part of the listing.

LISTING HIGHLIGHTS

Property Type: Residential
MLS: ®202529566
PID: ®20179198
Year Built:
Total Square Footage: 4294
Lot/Acreage: 0.0505
County: Colchester
Neighborhood: 104-Truro / Bible Hill
Area: Northern Region
Elementary School:
Middle School:
High School:

INTERIOR DETAILS

Bedrooms:
Bathrooms: Full
Appliances:
Heating: Heat Pump -Ductless,Hot Water,Radiator
Floor: Concrete,Wood
Basement:
Other:
Water: Municipal

EXTERIOR DETAILS

Lot: Description:
Zoning:
Roof: Rolled
Others:
Sewer:
Parking Features: Inglis Place is a one way street, with parking on both sides and as well a public lot at the end of the street., None

Contact Us